Trilocale in vendita

Milano, Via Privata Nicolò Alunno - Siena
€ 319.000
3 locali 3 locali
78 Mq 78 Mq
1 bagno 1 bagno

Trilocale in vendita

Milano, Via Privata Nicolò Alunno - Siena

Descrizione annuncio

VIA ALUNNO:

Nel cuore del quartiere Bande Nere, a breve distanza dalla fermata della metropolitana M1 BANDE NERE che in meno di 10 minuti collega al centro della città, oltre che dalle fermate dei vari mezzi di superficie (bus 98/63/80/67); proponiamo in contesto signorile anni 60, ben tenuto nelle parti comuni, un TRILOCALE ALLO STATO ORIGINARIO, posto al PRIMO PIANO in stabile sprovvisto di ascensore.

La zona risulta molto tranquilla e ben servita di tutti i servizi di prima necessità, come supermercati, farmacie, scuole, poste, bar, ristoranti. Inoltre, posizione strategica per l'accesso a tutte le arterie tangenziali/autostradali.

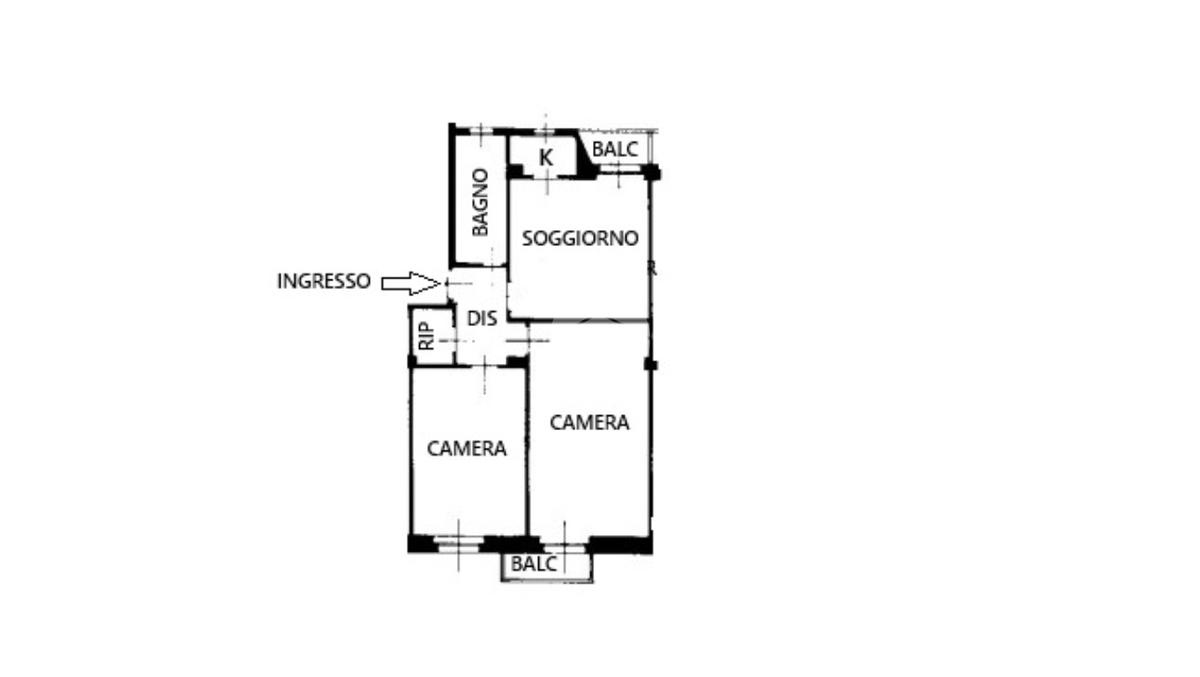
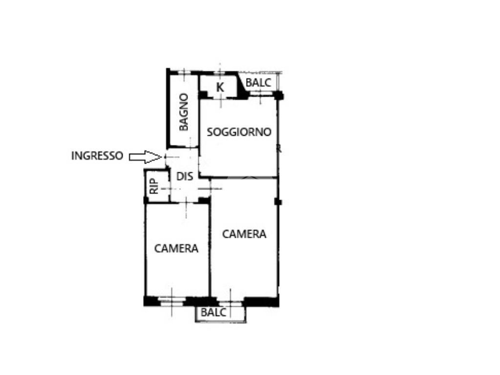
L'appartamento risulta essere così composto:

Ingresso in disimpegno che si apre subito frontalmente nell’ampio soggiorno con cucinotto e balconcino con piacevole affaccio sul cortile condominiale. A seguire tramite il disimpegno accediamo al living con annesso il secondo balcone che affaccia sulla tranquilla Via Alunno; ad oggi questa stanza è utilizzata come zona living ma può esser facilmente tramutata in seconda camera matrimoniale. Segue, con la medesima esposizione la camera matrimoniale. Infine, bagno finestrato con vasca e comodo ripostiglio.

L'appartamento si presenta ALLO STATO ORIGINARIO, con pavimentazione in marmo di diverse trame in tutti gli ambienti. Inoltre, infissi in doppio vetro pvc, porta blindata e split dell’aria condizionata.

Cantina di pertinenza.

Soluzione perfetta per giovani coppie, grazie al contesto in cui si trova ed alle condizioni della casa, ma anche per investimento data la posizione strategica.

Ogni agenzia ha un proprio titolare ed è autonoma.

Le informazioni non costituiscono elemento contrattuale.

VALUTAZIONI e CONSULENZE MUTUO GRATUITE.

Mostra tutto

Nelle vicinanze

Trasporto pubblico Trasporto pubblico
Bande Nere
Bande Nere
300 m
Primaticcio
Primaticcio
600 m
Milano San Cristoforo
Milano San Cristoforo
2,4 Km
Milano Porta Genova
Milano Porta Genova
3,0 Km
Piazzale Brescia (Ospedale San Luca)
Piazzale Brescia (Ospedale San Luca)
1,2 Km
Ricariche auto elettriche Ricariche auto elettriche
LIDL Milano Bezzi
1,2 Km
Autotecnica 95
1,4 Km
A2A Isola Digitale Piazza Amendola
1,8 Km
A2A AmendolaFiera
1,9 Km
A2A Isola Digitale Bisceglie
1,9 Km
Scuole Scuole
Scuole
220 m
Scuola Beato Angelico
500 m
Scuola Giapponese di Milano
780 m
International School of Milan
860 m
Scuole
910 m
Farmacia Farmacia
A.F.M. COMUNALE N.25
130 m
Farmacia Comunale
420 m
Farmacia
510 m
Farmacia Dottoressa Elisa Raviola
860 m
San Matteo
980 m
Ospedali Ospedali
Istituto Scientifico Ospedale San Luca
1,3 Km
Casa di Cura San Giovanni
1,3 Km
Ospedale San Carlo Borromeo
1,6 Km
Clinica Columbus
2,0 Km
Casa di Cura del Policlinico
2,2 Km
Supermercati Supermercati
Pam
140 m
Carrefour Market
390 m
NaturaSI'
580 m
Punto Simply
600 m
Esselunga
680 m
Negozi Negozi
My Auchan
180 m
Negozi
200 m
Carrefour Express
1,1 Km
Il Forno Caffè delle Fantasie
1,3 Km
Punto Discont
1,3 Km
Bar Bar
Bar
250 m
Baja Lounge Cafe
640 m
Cascina Torrette di Trenno
960 m
Simpaty Bar
1,0 Km
Morgan
1,2 Km
Ristoranti Ristoranti
Calafuria
220 m
Ristorante Pizzeria Bande Nere
270 m
Ristoranti
280 m
Pizzeria Pupiricchiello
290 m
Shokuji Tei
290 m
Mostra tutto

Caratteristiche

Rif.:
61120615
Piano:
1 di 2 (Piano basso)
Balconi:
2
Camere da letto:
2
Arredamento:
Assente
Condizionamento:
Autonomo
Mostra tutto
Prezzo Prezzo
€ 319.000
Rata mutuo Rata mutuo
€ 1.475 / mese
Spese annue Spese annue
€ 2.600
Proponi il tuo prezzoProponi il tuo prezzo

Classe Energetica

G
G
G
G
G
G
G
G
G
EP globale non rinnovabile:
185.55 kW h/m² anno
EP globale rinnovabile:
185.55 kW h/m² anno
EP invernale del fabbricato:
EP estiva del fabbricato:
Anno di costruzione:
1960
Riscaldamento:
Centralizzato
Tipo impianto:
A radiatori
Tipo alimentazione:
Metano

Ti interessa visionare l'immobile?

Fissa un appuntamento  Fissa un appuntamento

Richiedi informazioni

* Questi campi sono obbligatori

Calcola il tuo mutuo

Semplice e senza impegno
Anticipo

( % )
Mutuo

( % )

pochi semplici passi

inserisci i tuoi dati
Questionario completato
Grazie per aver richiesto un appuntamento senza impegno con un nostro Consulente del Credito e Assicurativo.

Hai inserito correttamente tutti i dati necessari e a breve riceverai una e-mail con un link da convalidare per inviare i tuoi dati.
Affiliato
Adr Case Srl
Via Delle Forze Armate, 32 20123 Milano (MI)

Il nostro staff


  • Kyrylo Broyanovskyy
    Responsabile

  • Leonardo Fortunato
    Collaboratore

  • Jacopo Graziani
    Collaboratore

  • Sebastian Pedrazzini
    Collaboratore

  • Dame Seck
    Collaboratore

  • Federica Signora
    Coordinatrice
Via Delle Forze Armate, 32 20123 Milano (MI)
Zona: Forze Armate-Bande Nere-Primaticcio-Berna
Mostra su mappa
Orari: Lunedì - Venerdì: 09.00 - 20.00; Sabato: 09.00-17.00; Domenica 10.30 - 12.30
Affiliato
Adr Case Srl
Via Delle Forze Armate, 32 20123 Milano (MI)

2025 Tecnocasa Franchising S.p.A. - P. IVA 08365160152 - Via Monte Bianco 60/A 20089 Rozzano (MI). Ogni agenzia ha un proprio titolare ed è autonoma. Privacy policy | Policy utilizzo | Cookie policy